APARTMÁNY PREDAJ, 69 m2, RAŽANAC, CHORVÁTSKO
Ponúkame na predaj 6 apartmánov, v apartmánovom dome (vo výstavbe), vo veľmi vyhľadávanej dovolenkovej lokalite severná Dalmácia v Chorvátsku. Ponúkané apartmány v mestečku Ražanac sú vzdialené len 150 m od mora. Ražanac je malé turistické mesto v Zadarskej župe v Chorvátsku. Rozkladá sa na brehoch Velebitského kanála v severnej Dalmácii, 22 km severovýchodne od historického mesta Zadar. Celá obec má asi 3000 obyvateľov. V Okruhu 300 m sa nachádza všetka potrebná občianska vybavenosť. Apartmánový dom bude trojpodlažný s plochou strechou ( na streche budú terasy k vrchným apartmánom). Bude sa v ňom nachádzať 6 apartmánov so samostatnými vchodmi, z toho 2 apartmány na prízemí budú plne bezbariérové. Obvodové múry a múry medzi apartmánmi sú hrúbky 330 mm, vnútorné priečky sú hrubé 100 – 200mm značky PORFIX. Celý dom bude zateplený polystyrénom hrúbky 100 mm. Kúpeľne sú odvetrané. Pozemok bude oplotený. Ku každému apartmánu prináleží minimálne jedno parkovacie miesto. Voda je distribuovaná z mestského vodovodu a kanalizácia riešená žumpou. Plyn v objekte nebude, vzhľadom na to, že celá oblasť nie je plynofikovaná. Kúrenie a chladenie bude zabezpečené reverznou klimatizáciou. Vybavenie apartmánov: • všetky apartmány budú mať obývaciu izbu spojenú s kuchyňou, dve spálne, kúpeľňu s toaletou a terasu, • vrchné apartmány ešte navyše veľkú terasu na streche, • keramické podlahy v celom apartmáne značky RAKO rozmeru 60x60 cm, • stierky na stenách s bielou, hygienickou farbou, • obklady v kuchyni a kúpeľni značky RAKO, • sanita v kúpeľni zahŕňa celosklenený sprchovací kút, umývadlo so skrinkou, wc značky GEBERIT a batérie značky KLUDI, • bojler na ohrievanie vody, • elektrické zásuvky a vypínače, rozvodná skriňa, • bez kuchynskej linky (po dohode možnosť dobudovania kuchynskej linky so vstavanými spotrebičmi podľa vlastného výberu), • klimatizácia vo všetkých obytných izbách, • bodové osvetlenie LED v chodbách a kúpeľniach, • vonkajšie bezpečnostné dvere a vnútorné oblôžkové, • plastové okná trojsklo, • terasa s dlažbou, • parkovacie miesto/miesta, V ponuke je aj možnosť prenajímania apartmánov v dobe, keď ich nebudete využívať. Celý servis spojený s prenájmom zabezpečuje správca, po vzájomnej dohode. Ak máte záujem o obhliadku, prípadne potrebujete viac informácii, nájdete nás v realitnom centre na Slovenskej 8 v Prešove, alebo na mojzis@benard.sk, tel.č. 0905 831 732. Ražanac sa prvýkrát spomína v 14. storočí, avšak táto oblasť bola osídlená dlho predtým. Sú tu početné archeologické nálezy a predmety z doby kamennej, a veľká mohyla z mladšej doby bronzovej. Z historických pamiatok je potrebné spomenúť farský kostol Panny Márie Ružencovej v Ražanaci zo 17. storočia a pevnosť - Kaštelina zo 16. storočia, postavený na obranu proti Turkom. Cestovný ruch v poslednej dobe pomaly preberá hlavnú úlohu, a miestni obyvatelia prenajímajú apartmány a izby vo svojich súkromných domoch. More okolo Ražanaci je skutočný klenot vďaka svojej čistote a jasnosti priťahuje mnoho návštevníkov z celého sveta. Pláže sú kamenisté a piesčité, s výnimkou pláže v zálive Punta, ktorá je štrková s pieskom v mori. Existuje mnoho aktivít, ktoré sú k dispozícii v Ražanaci a jeho okolí, napríklad rafting a kanoistika na rieke Zrmanja, pešia turistika a horolezectvo v pohorí Velebit, bungee jumping na Maslenickom moste, jazda na koni, paintball, zábavný park, somária farma ... V Ražanaci máte všetko, čo potrebujete pre bezstarostnú dovolenku. Toto maličké, no malebné dalmátske mestečko Vám prinesie mier, pokoj a úžasné klimatické podmienky. Čo sa týka občianskej vybavenosti, v Ražanaci nájdete všetko. Reštaurácie, bary, kaviarne, zmrzlinárne, lekáreň, tržnicu s čerstvými rybami, morskými plodmi, zeleninou a ovocím, veľký hypermarket a samozrejme v Ražanaci je aj malý prístav.
Ponúkame na predaj 6 apartmánov, v apartmánovom dome (vo výstavbe), vo veľmi vyhľadávanej dovolenkovej lokalite severná Dalmácia v Chorvátsku. Ponúkané apartmány v mestečku Ražanac sú vzdialené len 150 m od mora. Ražanac je malé turistické mesto v Zadarskej župe v Chorvátsku. Rozkladá sa na brehoch Velebitského kanála v severnej Dalmácii, 22 km severovýchodne od historického mesta Zadar. Celá obec má asi 3000 obyvateľov. V Okruhu 300 m sa nachádza všetka potrebná občianska vybavenosť.
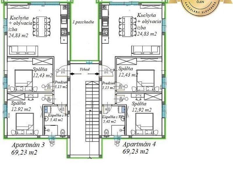
Apartmánový dom bude trojpodlažný s plochou strechou ( na streche budú terasy k vrchným apartmánom). Bude sa v ňom nachádzať 6 apartmánov so samostatnými vchodmi, z toho 2 apartmány na prízemí budú plne bezbariérové. Obvodové múry a múry medzi apartmánmi sú hrúbky 330 mm, vnútorné priečky sú hrubé 100 – 200mm značky PORFIX. Celý dom bude zateplený polystyrénom hrúbky 100 mm. Kúpeľne sú odvetrané. Pozemok bude oplotený. Ku každému apartmánu prináleží minimálne jedno parkovacie miesto. Voda je distribuovaná z mestského vodovodu a kanalizácia riešená žumpou. Plyn v objekte nebude, vzhľadom na to, že celá oblasť nie je plynofikovaná. Kúrenie a chladenie bude zabezpečené reverznou klimatizáciou.
Vybavenie apartmánov:
• všetky apartmány budú mať obývaciu izbu spojenú s kuchyňou, dve spálne, kúpeľňu s toaletou a terasu,
• vrchné apartmány ešte navyše veľkú terasu na streche,
• keramické podlahy v celom apartmáne značky RAKO rozmeru 60x60 cm,
• stierky na stenách s bielou, hygienickou farbou,
• obklady v kuchyni a kúpeľni značky RAKO,
• sanita v kúpeľni zahŕňa celosklenený sprchovací kút, umývadlo so skrinkou, wc značky GEBERIT a batérie značky KLUDI,
• bojler na ohrievanie vody,
• elektrické zásuvky a vypínače, rozvodná skriňa,
• bez kuchynskej linky (po dohode možnosť dobudovania kuchynskej linky so vstavanými spotrebičmi podľa vlastného výberu),
• klimatizácia vo všetkých obytných izbách,
• bodové osvetlenie LED v chodbách a kúpeľniach,
• vonkajšie bezpečnostné dvere a vnútorné oblôžkové,
• plastové okná trojsklo,
• terasa s dlažbou,
• parkovacie miesto/miesta,
V ponuke je aj možnosť prenajímania apartmánov v dobe, keď ich nebudete využívať. Celý servis spojený s prenájmom zabezpečuje správca, po vzájomnej dohode.
Ak máte záujem o obhliadku, prípadne potrebujete viac informácii, nájdete nás v realitnom centre na Slovenskej 8 v Prešove, alebo na mojzis@benard.sk, tel.č. 0905 831 732.
Ražanac sa prvýkrát spomína v 14. storočí, avšak táto oblasť bola osídlená dlho predtým. Sú tu početné archeologické nálezy a predmety z doby kamennej, a veľká mohyla z mladšej doby bronzovej. Z historických pamiatok je potrebné spomenúť farský kostol Panny Márie Ružencovej v Ražanaci zo 17. storočia a pevnosť - Kaštelina zo 16. storočia, postavený na obranu proti Turkom. Cestovný ruch v poslednej dobe pomaly preberá hlavnú úlohu, a miestni obyvatelia prenajímajú apartmány a izby vo svojich súkromných domoch. More okolo Ražanaci je skutočný klenot vďaka svojej čistote a jasnosti priťahuje mnoho návštevníkov z celého sveta. Pláže sú kamenisté a piesčité, s výnimkou pláže v zálive Punta, ktorá je štrková s pieskom v mori. Existuje mnoho aktivít, ktoré sú k dispozícii v Ražanaci a jeho okolí, napríklad rafting a kanoistika na rieke Zrmanja, pešia turistika a horolezectvo v pohorí Velebit, bungee jumping na Maslenickom moste, jazda na koni, paintball, zábavný park, somária farma ... V Ražanaci máte všetko, čo potrebujete pre bezstarostnú dovolenku. Toto maličké, no malebné dalmátske mestečko Vám prinesie mier, pokoj a úžasné klimatické podmienky. Čo sa týka občianskej vybavenosti, v Ražanaci nájdete všetko. Reštaurácie, bary, kaviarne, zmrzlinárne, lekáreň, tržnicu s čerstvými rybami, morskými plodmi, zeleninou a ovocím, veľký hypermarket a samozrejme v Ražanaci je aj malý prístav.













