BD – RELAX; 3 IZBOVÝ BYT; 3.NP; 85,57m2;PREDANÉ;
BYTOVÝ DOM RELAX - 3 IZBOVÝ BYT, BALKÓN, č. 303 Bytový dom RELAX vyrastie vedľa ŠRC v peknej časti prvých bytových domov postavených na sídlisku Západ, s ktorými bude tvoriť harmonickú súhru. Už samotný názov Relax hovorí o jeho charakter a význame a preto chce byť oddychovým a relaxačným miestom na bývanie. K tomu ho bude predurčovať jeho poloha, nápaditosť, dostupnosť, veľkosť jednotlivých miestností, hlavne priestranné balkóny, terasy a na 1.NP byty s predzáhradkami, ktoré sú najvhodnejším miestom na oddych a relax. Bytový dom RELAX bude tvorený so 4 podlaží s výťahom, kde bude 27 bytov a to: 2 izbový byt - 13x, 3 izbový byt, - 11x, 4 izbový byt - 3x, Parkovacie miesta vnútorné - 22x, Parkovacie miesta vonkajšie - 18x Pivnica pridelená ku každému bytu; Rozloha bytov sa pohybuje od 46m2 do 133m2 vrátane rozlohy balkóna a terasy. Výhodou niektorých prízemných bytov bude predzáhradka. Byty ponúkame na predaj v prevedený ŠTANDARD: - podlahy, dvere, obklady a dlažby - sanita v kúpeľni a v toalete - kuchynská linka vrátane batérie, drezu a spotrebičov (digestor, indukčná varná doska, rúra na pečenie, chladnička s mrazničkou), Dokončená bude kúpeľňa, WC, kuchyňa, dvere, podlahy, ktoré si vyberiete so širokej ponuky jednotlivých materiálov, prevedení a ceny. Základné komponenty jednotlivých bytov, bytového domu: Fasádny zatepľovací systém z minerálnej vlny; Nepochôdznu strechu so zabezpečeným tepelným odporom; Obvodové murivo a priečky – PHOROTERM (PHOROTERM AKU); Terasa, balkón - keramická dlažba protišmyková na rektifikačných terčoch; Plastové okná - s izolačným trojsklom, Vchodové dvere - protipožiarne plné, Podlahy – hladký poter pripravený na pokládku podlahovej krytiny, Steny – omietnuté interiérovou omietkou s finálnou vyrovnávacou stierkou, biele maľby stien a stropov; Kúrenie, ohrev vody – plynový kotol, podlahové kúrenie; Bytový elektrický rozvádzač - rozvody elektriny v miestnostiach ukončené zásuvkami a vypínačmi, Vodovod – teplá a studená voda v kuchyni, kúpeľni, WC, Kanalizačné potrubia v kuchyni, kúpeľni a WC, Ventily pre odstavenie vody; Rozvod s dátovými káblami do každej izby; Začiatok výstavby: 2. kvartál 2023 Ukončenie výstavby: 4. kvartál 2025 Pre viac informácii kontaktujte makléra, v prípade záujmu – osobné stretnutie.
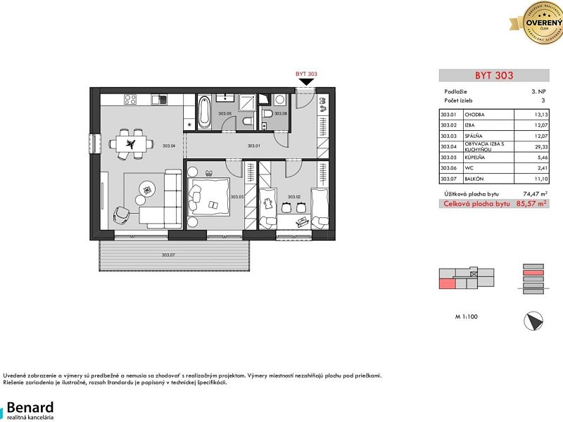
BYTOVÝ DOM RELAX - 3 IZBOVÝ BYT, BALKÓN, č. 303
Bytový dom RELAX vyrastie vedľa ŠRC v peknej časti prvých bytových domov postavených na sídlisku Západ, s ktorými bude tvoriť harmonickú súhru. Už samotný názov Relax hovorí o jeho charakter a význame a preto chce byť oddychovým a relaxačným miestom na bývanie. K tomu ho bude predurčovať jeho poloha, nápaditosť, dostupnosť, veľkosť jednotlivých miestností, hlavne priestranné balkóny, terasy a na 1.NP byty s predzáhradkami, ktoré sú najvhodnejším miestom na oddych a relax.
Bytový dom RELAX bude tvorený so 4 podlaží s výťahom, kde bude 27 bytov a to:
2 izbový byt - 13x,
3 izbový byt, - 11x,
4 izbový byt - 3x,
Parkovacie miesta vnútorné - 22x,
Parkovacie miesta vonkajšie - 18x
Pivnica pridelená ku každému bytu;
Rozloha bytov sa pohybuje od 46m2 do 133m2 vrátane rozlohy balkóna a terasy. Výhodou niektorých prízemných bytov bude predzáhradka.
Byty ponúkame na predaj v prevedený ŠTANDARD:
- podlahy, dvere, obklady a dlažby
- sanita v kúpeľni a v toalete
- kuchynská linka vrátane batérie, drezu a spotrebičov (digestor, indukčná varná doska, rúra na pečenie, chladnička s mrazničkou),
Dokončená bude kúpeľňa, WC, kuchyňa, dvere, podlahy, ktoré si vyberiete so širokej ponuky jednotlivých materiálov, prevedení a ceny.
Základné komponenty jednotlivých bytov, bytového domu:
Fasádny zatepľovací systém z minerálnej vlny;
Nepochôdznu strechu so zabezpečeným tepelným odporom;
Obvodové murivo a priečky – PHOROTERM (PHOROTERM AKU);
Terasa, balkón - keramická dlažba protišmyková na rektifikačných terčoch;
Plastové okná - s izolačným trojsklom,
Vchodové dvere - protipožiarne plné,
Podlahy – hladký poter pripravený na pokládku podlahovej krytiny,
Steny – omietnuté interiérovou omietkou s finálnou vyrovnávacou stierkou, biele maľby stien a stropov;
Kúrenie, ohrev vody – plynový kotol, podlahové kúrenie;
Bytový elektrický rozvádzač - rozvody elektriny v miestnostiach ukončené zásuvkami a vypínačmi,
Vodovod – teplá a studená voda v kuchyni, kúpeľni, WC,
Kanalizačné potrubia v kuchyni, kúpeľni a WC,
Ventily pre odstavenie vody;
Rozvod s dátovými káblami do každej izby;
Začiatok výstavby: 2. kvartál 2023
Ukončenie výstavby: 4. kvartál 2025
Pre viac informácii kontaktujte makléra, v prípade záujmu – osobné stretnutie.










