NAD KOVANCOM 3 IZBOVÝ BYT, 3.NP, 85.4m2; REZERVOVANÉ;
BYTOVÝ DOM NAD KOVANCOM „E“, 3 IZBOVÝ BYT č. 302 Pred niekoľkými rokmi zastavanej a už zabehnutej časti sídliska západ na Okružnej ul. v lokalite „Nad kovancom“ vznikne už v poradí 5. bytový dom, ktorý bude spoločne s ostatnými bytovými domami vytvárať harmonickú súhru a zároveň atraktívne a dostupné bývanie. V bytovom dome sa bude nachádzať 28 bytov, situovaných na šiestich poschodiach a na predaj je k dispozícii už len niekoľko bytov. Každý byt má balkón, resp. lodžiu, vlastnú pivnicu a parkovacie státie, ktoré nie každé je zdarma k bytu. V bytovom dome bude sa nachádzať 6 dvoj garáži a parkovacie státie bude k dispozícii vedľa bytového domu. Byty predávame v prevedení HOLOBYT, tzn. pripravený na dokončenie kúpeľne, WC, dlažieb, obkladov, podláh, dverí, kuchynskej linky a pod. Veľkou výhodou podľa jednotlivých bytov bude krásny výhľad na Ľubovniansky hrad, okolitú prírodu a Vysoké Tatry. V tomto bytovom dome ponúkame na predaj 3 izbový byt nachádzajúci sa na 3. poschodí. ZÁKLADNÉ INFORMÁCIE O BYTE: podlahová plocha bytu je 76,02 m2; rozloha balkóna 9,38 m2; orientácia bytu je severovýchod - severozápad; pivnica a parkovanie v cene; Prevedenie Holobyt: Okná plastové s izolačným trojsklom, vchodové dvere protipožiarne plné, hladký poter pripravený na pokládku podlahovej krytiny, steny – omietnuté jadrovou omietkou s finálnou vyrovnávacou stierkou, biele maľby stien a stropov, vykurovacie telesá – doskové radiátory alebo podlahové kúrenie, kúrenie - vlastné vykurovanie, plynový kotol, bytový elektrický rozvádzač, rozvody elektriny v miestnostiach ukončené zásuvkami a vypínačmi, vývody vodovodu – teplá a studená voda v kuchyni, kúpeľni, WC, vývody kanalizačných potrubí v kuchyni, kúpeľni a WC, bytové ventily pre odstavenie vody, vývody zaslepené tzv. záslepkou a pripravené pre montáž batérií a „sifónov“, lodžia, balkón - keramická dlažba protišmyková, izolované, spádované, v bytoch zavedené dátové káble, káblová TV; Bytový dom: na prízemí garáže, pivnice; výťah s prízemia, bezbariérový vstup; zateplenie, rovná strecha; parkovanie pri bytovom dome; Začiatok výstavby: 3. kvartál 2025 Ukončenie výstavby: 4. kvartál 2027
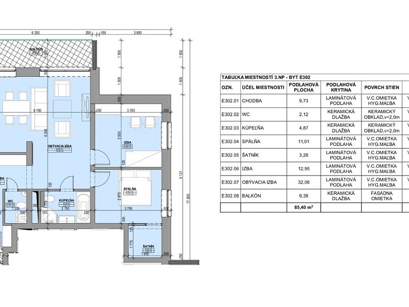
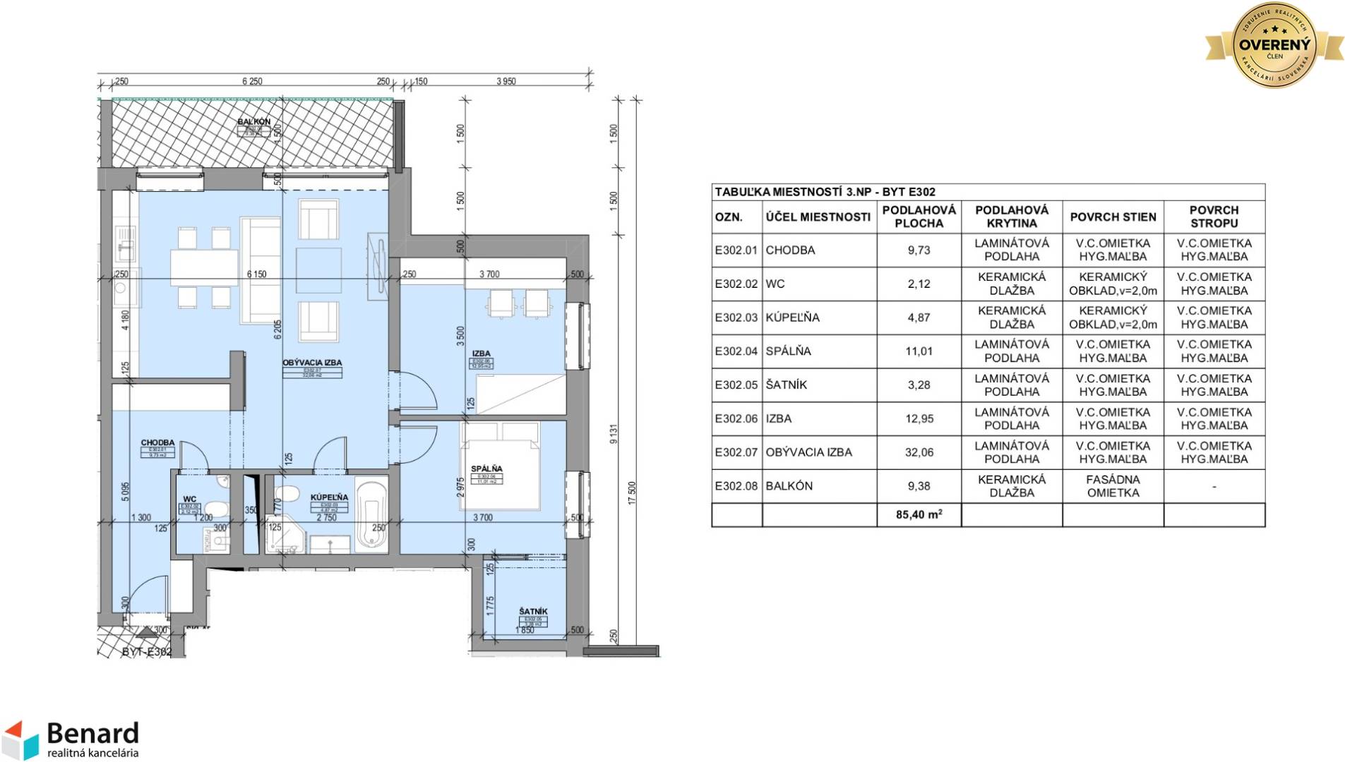
BYTOVÝ DOM NAD KOVANCOM „E“, 3 IZBOVÝ BYT č. 302
Pred niekoľkými rokmi zastavanej a už zabehnutej časti sídliska západ na Okružnej ul. v lokalite „Nad kovancom“ vznikne už v poradí 5. bytový dom, ktorý bude spoločne s ostatnými bytovými domami vytvárať harmonickú súhru a zároveň atraktívne a dostupné bývanie. V bytovom dome sa bude nachádzať 28 bytov, situovaných na šiestich poschodiach a na predaj je k dispozícii už len niekoľko bytov. Každý byt má balkón, resp. lodžiu, vlastnú pivnicu a parkovacie státie, ktoré nie každé je zdarma k bytu. V bytovom dome bude sa nachádzať 6 dvoj garáži a parkovacie státie bude k dispozícii vedľa bytového domu. Byty predávame v prevedení HOLOBYT, tzn. pripravený na dokončenie kúpeľne, WC, dlažieb, obkladov, podláh, dverí, kuchynskej linky a pod. Veľkou výhodou podľa jednotlivých bytov bude krásny výhľad na Ľubovniansky hrad, okolitú prírodu a Vysoké Tatry.
V tomto bytovom dome ponúkame na predaj 3 izbový byt nachádzajúci sa na 3. poschodí.
ZÁKLADNÉ INFORMÁCIE O BYTE:
podlahová plocha bytu je 76,02 m2;
rozloha balkóna 9,38 m2;
orientácia bytu je severovýchod - severozápad;
pivnica a parkovanie v cene;
Prevedenie Holobyt:
Okná plastové s izolačným trojsklom,
vchodové dvere protipožiarne plné,
hladký poter pripravený na pokládku podlahovej krytiny,
steny – omietnuté jadrovou omietkou s finálnou vyrovnávacou stierkou,
biele maľby stien a stropov, vykurovacie telesá – doskové radiátory alebo podlahové kúrenie,
kúrenie - vlastné vykurovanie, plynový kotol,
bytový elektrický rozvádzač, rozvody elektriny v miestnostiach ukončené zásuvkami a vypínačmi,
vývody vodovodu – teplá a studená voda v kuchyni, kúpeľni, WC,
vývody kanalizačných potrubí v kuchyni, kúpeľni a WC,
bytové ventily pre odstavenie vody, vývody zaslepené tzv. záslepkou a pripravené pre montáž batérií a „sifónov“,
lodžia, balkón - keramická dlažba protišmyková, izolované, spádované,
v bytoch zavedené dátové káble, káblová TV;
Bytový dom:
na prízemí garáže, pivnice;
výťah s prízemia, bezbariérový vstup;
zateplenie, rovná strecha;
parkovanie pri bytovom dome;
Začiatok výstavby: 3. kvartál 2025
Ukončenie výstavby: 4. kvartál 2027











