NOVOSTAVBA – 3-izbový byt v Starej Ľubovni
Hľadáte moderné bývanie v úplnej novostavbe v Starej Ľubovni, kde máte zároveň blízko do centra a pritom si užívate ticho a výhľad na prírodu? Ponúkame na predaj 3-izbový byt v stave holobyt s veľkorysým exteriérom – balkónom aj terasou. Byt je situovaný v pokojnej lokalite s príjemnou atmosférou a výbornými možnosťami na aktívny oddych. V bezprostrednej blízkosti sa nachádza workoutové ihrisko a cyklotrasa, čo robí túto nehnuteľnosť ideálnou voľbou pre ľudí, ktorí chcú mať prírodu „na dosah“, no zároveň nechcú robiť kompromisy v dostupnosti mesta. Bytový dom je postavený z tvárnic Porfix (hr. 300 mm) a zateplený izoláciou hr. 200 mm, čo prispieva k lepšiemu komfortu bývania. O príjemnú tepelnú pohodu sa stará podlahové vykurovanie a moderné riešenie vykurovania je zabezpečené tepelným čerpadlom. Dispozícia a výmery (podľa výkazu výmer) Podlahová plocha bytu: 69,4 m², z toho: - chodba: 5,80 m² - izba: 12,60 m² - izba: 12,60 m² - obývacia izba: 16,90 m² - kuchyňa: 9,30 m² - kúpeľňa/WC: 3,70 m² - kúpeľňa/WC: 4,90 m² - technická miestnosť: 3,60 m² - balkón: 10 m² - terasa: 10 m² Bonus – možnosť dokúpiť garáž K bytu je možnosť dokúpiť garáž s privedenou elektrinou aj vodou, s prípravou na nabíjanie elektromobilu. Cena garáže: 30 000 €. Video z obhliadky bytu: https://youtu.be/Swal4CLOrzs?si=eOJY6iza4RWdghvv Ak vás táto ponuka zaujala, rád vám poskytnem viac informácií a dohodnem obhliadku. Obhliadky: 0949 808 809
Hľadáte moderné bývanie v úplnej novostavbe v Starej Ľubovni, kde máte zároveň blízko do centra a pritom si užívate ticho a výhľad na prírodu? Ponúkame na predaj 3-izbový byt v stave holobyt s veľkorysým exteriérom – balkónom aj terasou.
Byt je situovaný v pokojnej lokalite s príjemnou atmosférou a výbornými možnosťami na aktívny oddych. V bezprostrednej blízkosti sa nachádza workoutové ihrisko a cyklotrasa, čo robí túto nehnuteľnosť ideálnou voľbou pre ľudí, ktorí chcú mať prírodu „na dosah“, no zároveň nechcú robiť kompromisy v dostupnosti mesta.
Bytový dom je postavený z tvárnic Porfix (hr. 300 mm) a zateplený izoláciou hr. 200 mm, čo prispieva k lepšiemu komfortu bývania. O príjemnú tepelnú pohodu sa stará podlahové vykurovanie a moderné riešenie vykurovania je zabezpečené tepelným čerpadlom.
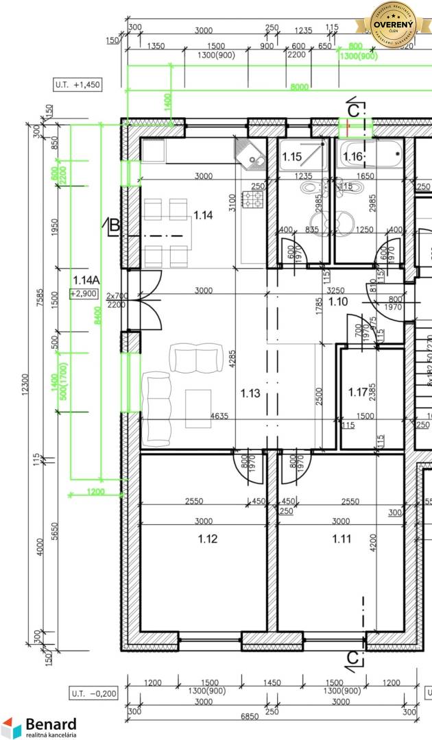
Dispozícia a výmery (podľa výkazu výmer)
Podlahová plocha bytu: 69,4 m², z toho:
- chodba: 5,80 m²
- izba: 12,60 m²
- izba: 12,60 m²
- obývacia izba: 16,90 m²
- kuchyňa: 9,30 m²
- kúpeľňa/WC: 3,70 m²
- kúpeľňa/WC: 4,90 m²
- technická miestnosť: 3,60 m²
- balkón: 10 m²
- terasa: 10 m²
Bonus – možnosť dokúpiť garáž
K bytu je možnosť dokúpiť garáž s privedenou elektrinou aj vodou, s prípravou na nabíjanie elektromobilu.
Cena garáže: 30 000 €.
Video z obhliadky bytu: https://youtu.be/Swal4CLOrzs?si=eOJY6iza4RWdghvv
Ak vás táto ponuka zaujala, rád vám poskytnem viac informácií a dohodnem obhliadku.
Obhliadky: 0949 808 809





















