NA PREDAJ 3 IZB. BYTY VO VÝBORNEJ LOKALITE V POPRADE, TYP 13
KARPATSKÁ RESIDENCE TYP BYTU 13 je voľný na: 1 poschodí ( byt č.: 1.13. ) - 275 400 EUR 2 poschodí ( byt č.: 2.13. ) - 275 400 EUR 3 poschodí ( byt č.: 3.13. ) - 275 400 EUR 4 poschodí ( byt č.: 4.13. ) - 275 400 EUR 5 poschodí ( byt č.: 5.13. ) - 275 400 EUR - Výmera 88,08 m2 s loggiou - Orientácia bytu je na SV - Byty sú dokončené v ŠTANDARDE: - laminátové podlahy v celom byte, dlažba a keramické obklady so sanitou v kúpeľni a WC. - Kuchynská linka so vstavanými spotrebičmi: chladnička s mrazničkou, teplovzdušná rúra, indukčná varná doska, umývačka riadu, digestor vedený do komína, všetko v značke Whirlpool - PLASTOVÉ OKNÁ s izolačným trojsklom. V každej obytnej izbe je minimálne jedno okenné krídlo otváravo – sklopné. - VZDUCHOTECHNIKA v kúpeľniach a WC. V byte je navrhnuté vzduchotechnické potrubie pre napojenie digestora ŠATNÍK: nadštandardným prvkom je aj uzatvorenie šatníkového priestoru vo vstupnej chodbe bytu posuvnými dverami, ktoré sú zahrnuté v cene bytu. Vnútorné vybavenie šatníka si klient zabezpečuje individuálne v zmysle jeho predstáv. EXTÉRIEROVÉ ROLETY: exteriérové rolety s elektrickým ovládaním, s vonkajším zaomietacím bubnom, vo farbe okenných rámov. VYKUROVANIE: - Objekt má vlastnú plynovú kotolňu, z ktorej je centrálne distribuované teplo a TÚV do bytov a apartmánov. - V každom byte sú biele doskové panelové radiátory a v kúpeľni sú biele rebríkové radiátory - Regulácia tepla je umožnená termostatickými hlavicami na vykurovacích telesách - Merače tepla sú umiestnené v uzatváracích šachtách prístupných zo spoločnej chodby, pre každý byt je inštalované individuálne meranie spotreby. CHLADENIE: - V bytoch je zrealizovaná príprava na individuálne chladenie bytov pozostávajúca z priestoru na umiestnenie vonkajšej jednotky chladenia na balkóne, vývodu elektroinštalácie na pripojenie vonkajšej jednotky chladenia, podľa platnej projektovej dokumentácie. (Vonkajšie jednotky, vnútorné jednotky vrátane regulácie, inštalácie rozvodov chladiva a dopojenia elektriny a odvod kondenzátu v rámci bytu nie sú súčasťou štandardného vybavenia). PIVNICA: Možnosť zakúpenia pivničnej kobky. PARKOVANIE: Možnosť zakúpenia garážového státia v suteréne bytového domu. VÝŤAH: V celom bytovom dome sú 2 osobné výťahy a jeden nákladný. Všetky výťahy idú aj do suterénu bytového dumu. SPOLOČNÉ PRIESTORY: Vstup do bytového domu je cez hliníkové rámové presklené dvere s elektrozámkom ovládaným bezdotykovým čítacím zariadením. Vo vstupnej hale je na podlahe čistiaca zóna a na stene poštové schránky. Vstupná časť do bytového domu, výťahová lobby a spoločné chodby majú na podlahe dlažbu a na stenách náter bielej farby. Bytové chodby majú inštalované svietidlá, detektory pohybu a núdzové osvetlenie. OKOLIE BYTOVÉHO DOMU: V blízkom okolí je kompletná občianska vybavenosť SAD, ŽSR, MHD, obchodné a nákupné centrá, lekári, reštaurácie, centrum mesta. KONTAKT: Ak máte záujem o obhliadku, prípadne potrebujete viac informácii, kontaktujte nás na: kmecova@benard.sk, tel.č. 0948 140 849.
KARPATSKÁ RESIDENCE TYP BYTU 13 je voľný na:
1 poschodí ( byt č.: 1.13. ) - 275 400 EUR
2 poschodí ( byt č.: 2.13. ) - 275 400 EUR
3 poschodí ( byt č.: 3.13. ) - 275 400 EUR
4 poschodí ( byt č.: 4.13. ) - 275 400 EUR
5 poschodí ( byt č.: 5.13. ) - 275 400 EUR
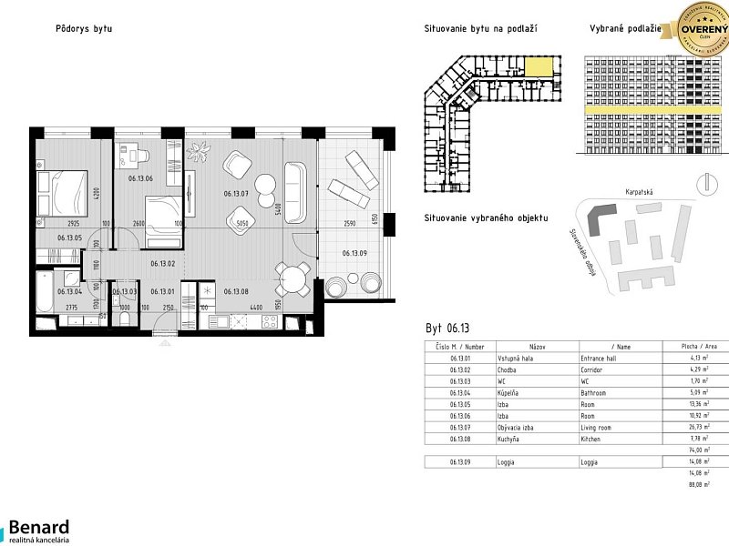
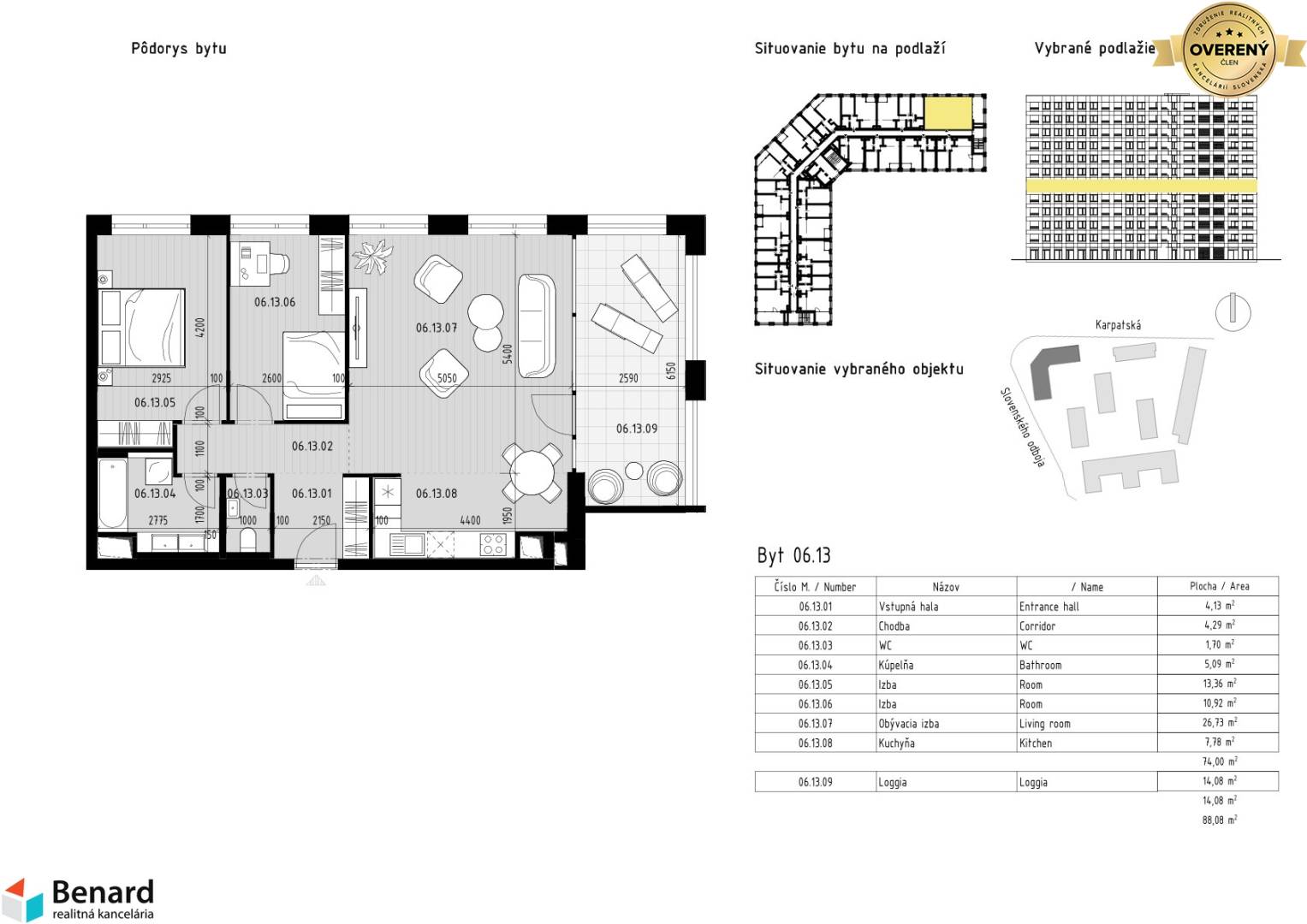
- Výmera 88,08 m2 s loggiou
- Orientácia bytu je na SV
- Byty sú dokončené v ŠTANDARDE:
- laminátové podlahy v celom byte, dlažba a keramické obklady so sanitou v kúpeľni a WC.
- Kuchynská linka so vstavanými spotrebičmi: chladnička s mrazničkou, teplovzdušná rúra, indukčná varná doska, umývačka riadu, digestor vedený do komína, všetko v
značke Whirlpool
- PLASTOVÉ OKNÁ s izolačným trojsklom. V každej obytnej izbe je minimálne jedno okenné krídlo otváravo – sklopné.
- VZDUCHOTECHNIKA v kúpeľniach a WC. V byte je navrhnuté vzduchotechnické potrubie pre napojenie digestora
ŠATNÍK: nadštandardným prvkom je aj uzatvorenie šatníkového priestoru vo vstupnej chodbe bytu posuvnými dverami, ktoré sú zahrnuté v cene bytu. Vnútorné vybavenie šatníka si klient zabezpečuje individuálne v zmysle jeho predstáv.
EXTÉRIEROVÉ ROLETY: exteriérové rolety s elektrickým ovládaním, s vonkajším zaomietacím bubnom, vo farbe okenných rámov.
VYKUROVANIE:
- Objekt má vlastnú plynovú kotolňu, z ktorej je centrálne distribuované teplo a TÚV do bytov a apartmánov.
- V každom byte sú biele doskové panelové radiátory a v kúpeľni sú biele rebríkové radiátory
- Regulácia tepla je umožnená termostatickými hlavicami na vykurovacích telesách
- Merače tepla sú umiestnené v uzatváracích šachtách prístupných zo spoločnej chodby, pre každý byt je inštalované individuálne meranie spotreby.
CHLADENIE:
- V bytoch je zrealizovaná príprava na individuálne chladenie bytov pozostávajúca z priestoru na umiestnenie vonkajšej jednotky chladenia na balkóne, vývodu elektroinštalácie na pripojenie vonkajšej jednotky chladenia, podľa platnej projektovej dokumentácie. (Vonkajšie jednotky, vnútorné jednotky vrátane regulácie, inštalácie rozvodov chladiva a dopojenia elektriny a odvod kondenzátu v rámci bytu nie sú súčasťou štandardného vybavenia).
PIVNICA:
Možnosť zakúpenia pivničnej kobky.
PARKOVANIE:
Možnosť zakúpenia garážového státia v suteréne bytového domu.
VÝŤAH:
V celom bytovom dome sú 2 osobné výťahy a jeden nákladný. Všetky výťahy idú aj do suterénu bytového dumu.
SPOLOČNÉ PRIESTORY:
Vstup do bytového domu je cez hliníkové rámové presklené dvere s elektrozámkom ovládaným bezdotykovým čítacím zariadením. Vo vstupnej hale je na podlahe čistiaca zóna a na stene poštové schránky. Vstupná časť do bytového domu, výťahová lobby a spoločné chodby majú na podlahe dlažbu a na stenách náter bielej farby. Bytové chodby majú inštalované svietidlá, detektory pohybu a núdzové osvetlenie.
OKOLIE BYTOVÉHO DOMU:
V blízkom okolí je kompletná občianska vybavenosť SAD, ŽSR, MHD, obchodné a nákupné centrá, lekári, reštaurácie, centrum mesta.
KONTAKT:
Ak máte záujem o obhliadku, prípadne potrebujete viac informácii, kontaktujte nás na: kmecova@benard.sk, tel.č. 0948 140 849.













